Description

165 m²
1072 m²
6 pièces
4 chambres

Vous êtes ici devant un témoin du temps. Venez découvrir avec Olivier Dhulu LF Immo, l’ancien bâtiment communal qui abritait jadis la mairie et l’école des garçons, aujourd’hui transformé en une exceptionnelle demeure individuelle en semi plain-pied, alliant cachet d’antan et confort moderne.

Construite en 1866, cette bâtisse incarne le passage des générations et l’évolution du cœur de la commune.

Elle offre une surface habitable d’environ 165 m², sur une parcelle de 1 072 m².

Rénovation complète du sol à la toiture : charpente, couverture, isolation, menuiseries, électricité, plomberie, ravalement de façade.

L’esprit d’origine a été respecté tout en apportant les touches de confort nécessaires.

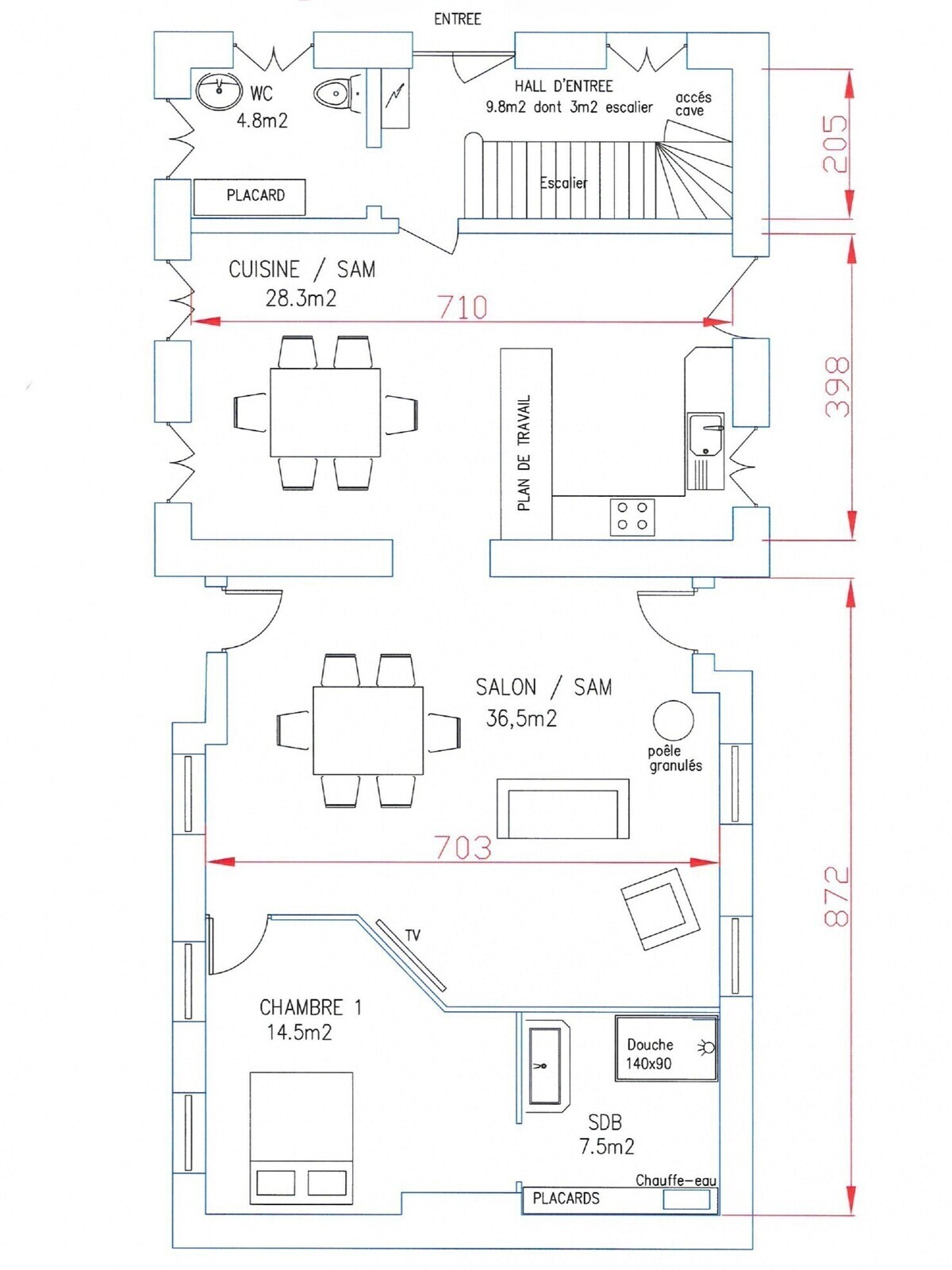
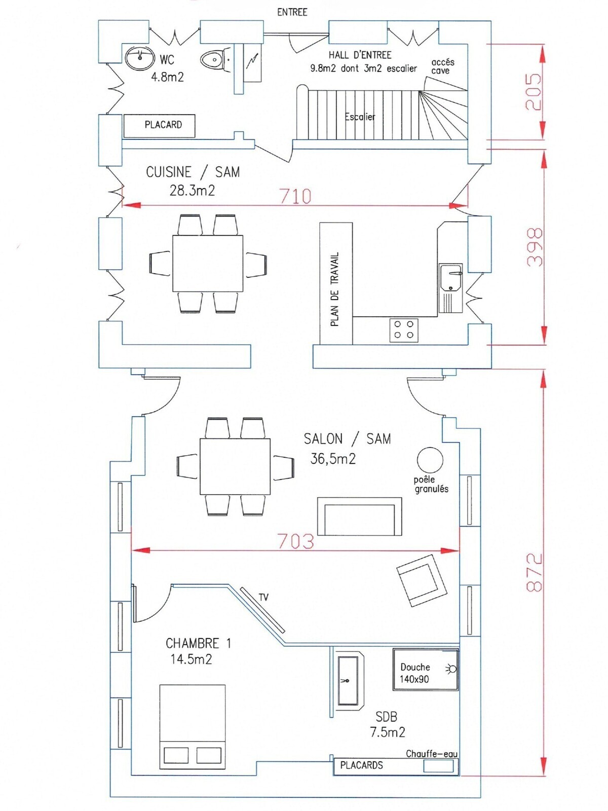
Rez-de-chaussée lumineux grâce à sa configuration traversante, et pratique avec ses multiples accès aux extérieurs.
Entrée avec cabinet de toilettes, vestiaire
Belle cuisine aménagée et équipée (28 m²), où l’on partage facilement des repas en famille ou entre amis dans une atmosphère conviviale
Séjour (36 m²) avec poêle à granulés, cosy et lumineux
Suite parentale (22 m²) : chambre + salle d’eau attenante

Étage
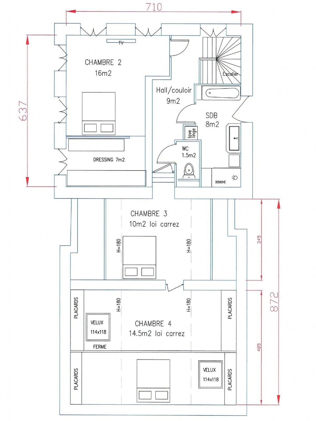
Palier distribuant une première chambre (16 m²) et son dressing (7 m²)
Une deuxième chambre (14,5m²) et un bureau attenant (10m²)
Salle de bains avec baignoire et douche et wc indépendant

Extérieurs et dépendances
L’ancien cadre scolaire a été intelligemment réinventé :
Ancien préau aménagé, idéal pour profiter d’un repas ou d’un moment convivial à l’abri de la pluie
Anciennes toilettes transformées en pièce habitable (bureau, salle de sport…)
Partie couverte et fermée : parfaite pour stocker vélos, matériel ou aménager un atelier
Cave voûtée en pierre blanche : cachet et fraîcheur garantis

Stationnement prévu pour plusieurs véhicules : allée goudronnée, portail électrique
Jardin paysager, terrasse sur plots sans vis-à-vis exposée ouest, un écrin de tranquillité

Points forts et potentiel
Emplacement central, proximité commerces, commodités, golf
Rénovation intégrale, aucun travaux à prévoir
Espaces annexes et volumes, offrant de multiples usages

Plus qu’un bien, une histoire.
Ce n’est pas tous les jours que l’on peut devenir le gardien d’un morceau de patrimoine local. En acquérant cette ancienne mairie-école, vous ne faites pas que devenir propriétaire : vous héritez d’une mémoire vivante, à poursuivre et à réinventer.
Idéal pour amateurs de biens atypiques ou passionnés d’histoire.

Vous voulez découvrir cette maison sans vous déplacer ? Visite virtuelle disponible sur demande après un échange téléphonique.

Les informations sur les risques auxquels ce bien est exposé sont disponibles sur le site Géorisques : www.georisques.gouv.fr

Caractéristiques

Honoraires charge
mandant
Type
maison
État général
excellent
Environnement
village
Orientation
Ouest
Disponibilité
à l'acte
Construction
1866
Rénovation
2018
Surface terrain
1072 m²
Surface habitable
165 m²
Nb. chambres
4
Nb. salles d'eau
2
Nb. cuisines
1
Nb. parking
5
Types de cuisine
équipée et aménagée
Chauffages
gaz et poêle à granulés
Parking privé
Cave
Terrasse
Tout à l'égout
Taxe foncière
1 067,00 €

Télécharger le barème des honoraires

Tous les outils pour vos projets immobiliers

Découvrez Mon CID,

mon compagnon immobilier digital

Accès à toutes les ventes immobilières,

boussole à réalité augmentée,

tester le débit de votre futur achat,

calculatrice de mensualité, etc.

Application mobile disponible sur

En savoir plus

Performance énergétique

logement extrêmement performant
bâtiment performantpassoire énergétique
  • A< 70
  • B70 - 110
  • C110 - 180130kWh/m².an21 *kg CO2/m².an
  • D180 - 250
  • E250 - 330
  • F330 - 420
  • G> 420
logement extrêmement peu performant

* Dont émissions de gaz à effet de serre

peu d'émissions de CO2
  • A< 6
  • B6 - 11
  • C11 - 3021kg CO2/m².an
  • D30 - 50
  • E50 - 70
  • F70 - 100
  • G> 100
émissions de CO2 très importantes

Estimation des dépenses annuelles d'énergie pour un usage standard

entre 1 972 € et 2 668 € / an *

* Prix moyens des énergies indexés pour l'année 2022 (abonnement compris).

Simulation de prêt

(10% du prix du bien)
%
(taux moyen hors assurance)

Montant estimé

2740 € / mois *

* Calculs effectués sur la base d'un prêt à taux fixe de 3,32% sur une durée de 25 ans avec un apport de 10% et hors assurance. Le coût de l'assurance de prêt dépend du capital assuré, de votre âge, de la durée du prêt, du taux d'intérêt du prêt, de votre questionnaire de santé et/ou médical, et de votre profession. Les calculs et solutions indiqués ne revêtent aucun caractère contractuel et ne sont en aucun cas une offre de prêt. Seuls les banques et organismes de financement sont habilités à accorder un financement. Pour tout crédit immobilier, vous êtes protégés par un délai de réflexion de 10 jours. Aucun versement de quelque nature que ce soit ne peut être exigé d'un particulier avant l'obtention d'un ou de plusieurs prêts d'argent. L'achat est subordonné à l'obtention du prêt. S'il n'est pas obtenu, le vendeur doit rembourser les sommes versées. Un crédit vous engage et doit être remboursé. Vérifiez vos capacités de remboursement avant de vous engager.

Cette annonce vous intéresse ?

Prenez contact avec Olivier Dhulu (EI)

Olivier Dhulu

Agent commercial en immobilier immatriculé au RSAC de ARRAS sous le n°834463093

Ventes Titan de bronze 2024/2025

ou

Autres annonces à découvrir...

Logo La Fédé de l'Immo

La Fédé de l’Immo rassemble des agences immobilières indépendantes qui ont choisi d’adhérer à un modèle plus collaboratif, plus puissant et plus moderne. Ici, chaque agence reste indépendante. Mais aucune n’est isolée. En rejoignant La Fédé de l’Immo, les agences mutualisent leurs outils, leur visibilité et leurs opportunités, tout en conservant leur identité locale.

Coordonnées du siège

La Fédé de l'Immo

(France)

Chaque Membre de la Fédération est juridiquement et financièrement indépendant.

Filtres SVG
Logo La Fédé de l'Immo Logo La Fédé de l'Immo La Fédé de l'Immo

En poursuivant votre navigation sur ce site, vous acceptez l'utilisation de Cookies pour mesurer l'audience de notre site.

En savoir plus