Description

123 m²
718 m²
6 pièces
4 chambres
2 sdb

Découvrez cette maison située au sud est de Léognan! Ses points forts sont: très lumineuse, bonne exposition,4 chambres, 2 salles d'eau, potentiel d'agrandissement.

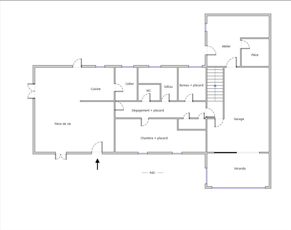
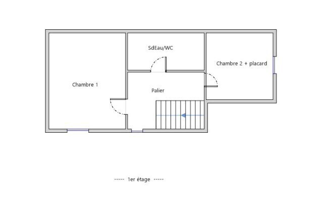
Sur une parcelle d'environ 720m2 piscinable, elle se compose d'une entrée, d'un séjour avec poêle à bois, d'une cuisine ouverte avec son arrière cuisine, de 4 chambres, de 2 salles d'eau, de 2 wc, d'une buanderie, d'un bureau et d'un atelier. Rénovée en 2023, quelques petites finitions restent à réaliser. La surface habitable est de 120m2 mais elle peut facilement être portée à 160m2 avec quelques aménagements.

Vous serez à quelques minutes des établissements scolaires, des commerces et commodités qu'offre Léognan ainsi que le bus scolaire à pieds. Bordeaux et l'autoroute A62 sont facilement accessibles.

Les informations sur les risques auxquels ce bien est exposé sont disponibles sur le site Géorisques : www.georisques.gouv.fr

Caractéristiques

Honoraires charge
mandant
Type
maison
État général
bon
Environnement
campagne non-isolée
Orientation
Ouest
Disponibilité
à l'acte
Construction
1983
Rénovation
2023
Surface totale
161 m²
Surface terrain
718 m²
Surface habitable
123 m²
Nb. chambres
4
Nb. salles de bains
2
Nb. cuisines
1
Nb. parking
3
Types de cuisine
équipée
Chauffages
bois et électricité
Tout à l'égout
Taxe foncière
1 400,00 €

Télécharger le barème des honoraires

Localisation Léognan, 33850

Pour des raisons de confidentialité, la géolocalisation de ce bien a été dégradée.

Tous les outils pour vos projets immobiliers

Découvrez Mon CID,

mon compagnon immobilier digital

Accès à toutes les ventes immobilières,

boussole à réalité augmentée,

tester le débit de votre futur achat,

calculatrice de mensualité, etc.

Application mobile disponible sur

En savoir plus

Performance énergétique

logement extrêmement performant
bâtiment performantpassoire énergétique
  • A< 70
  • B70 - 110
  • C110 - 180
  • D180 - 250211kWh/m².an7 *kg CO2/m².an
  • E250 - 330
  • F330 - 420
  • G> 420
logement extrêmement peu performant

* Dont émissions de gaz à effet de serre

peu d'émissions de CO2
  • A< 6
  • B6 - 117kg CO2/m².an
  • C11 - 30
  • D30 - 50
  • E50 - 70
  • F70 - 100
  • G> 100
émissions de CO2 très importantes

Estimation des dépenses annuelles d'énergie pour un usage standard

entre 1 630 € et 2 270 € / an *

* Prix moyens des énergies indexés pour l'année 2021 (abonnement compris).

Simulation de prêt

(10% du prix du bien)
%
(taux moyen hors assurance)

Montant estimé

1784 € / mois *

* Calculs effectués sur la base d'un prêt à taux fixe de 3,43% sur une durée de 25 ans avec un apport de 10% et hors assurance. Le coût de l'assurance de prêt dépend du capital assuré, de votre âge, de la durée du prêt, du taux d'intérêt du prêt, de votre questionnaire de santé et/ou médical, et de votre profession. Les calculs et solutions indiqués ne revêtent aucun caractère contractuel et ne sont en aucun cas une offre de prêt. Seuls les banques et organismes de financement sont habilités à accorder un financement. Pour tout crédit immobilier, vous êtes protégés par un délai de réflexion de 10 jours. Aucun versement de quelque nature que ce soit ne peut être exigé d'un particulier avant l'obtention d'un ou de plusieurs prêts d'argent. L'achat est subordonné à l'obtention du prêt. S'il n'est pas obtenu, le vendeur doit rembourser les sommes versées. Un crédit vous engage et doit être remboursé. Vérifiez vos capacités de remboursement avant de vous engager.

Cette annonce vous intéresse ?

Prenez contact avec Alice Dupont (EI)

Alice Dupont

Agent commercial en immobilier immatriculé au RSAC de Bordeaux sous le n°909831596

Développeur d'équipe Titan de bronze 2023/2024

ou

Autres annonces à découvrir...

Logo La Fédération de l’Immobilier

La Fédé de l’Immo rassemble des agences immobilières indépendantes qui ont choisi d’adhérer à un modèle plus collaboratif, plus puissant et plus moderne. Ici, chaque agence reste indépendante. Mais aucune n’est isolée. En rejoignant La Fédé de l’Immo, les agences mutualisent leurs outils, leur visibilité et leurs opportunités, tout en conservant leur identité locale.

Coordonnées du siège

La Fédération de l’Immobilier
34 avenue des Champs Elysées
Paris, 75008 (France)
+33 3 88 62 97 69
contact@lafede.immo

Chaque Membre de la Fédération est juridiquement et financièrement indépendant.

Filtres SVG
Logo La Fédération de l’Immobilier Logo La Fédération de l’Immobilier La Fédération de l’Immobilier

En poursuivant votre navigation sur ce site, vous acceptez l'utilisation de Cookies pour mesurer l'audience de notre site.

En savoir plus